Главная
Проекты
Услуги
Контакты
Проекты
ЖК Левада S83
ЖК НОВАЯ БОРОВАЯ S60 м. кв.
Цветочный магазин МК
ЖК МИНСК МИР S41
ЖК Гранд Хаус S80
ЖК Мегаполис S80
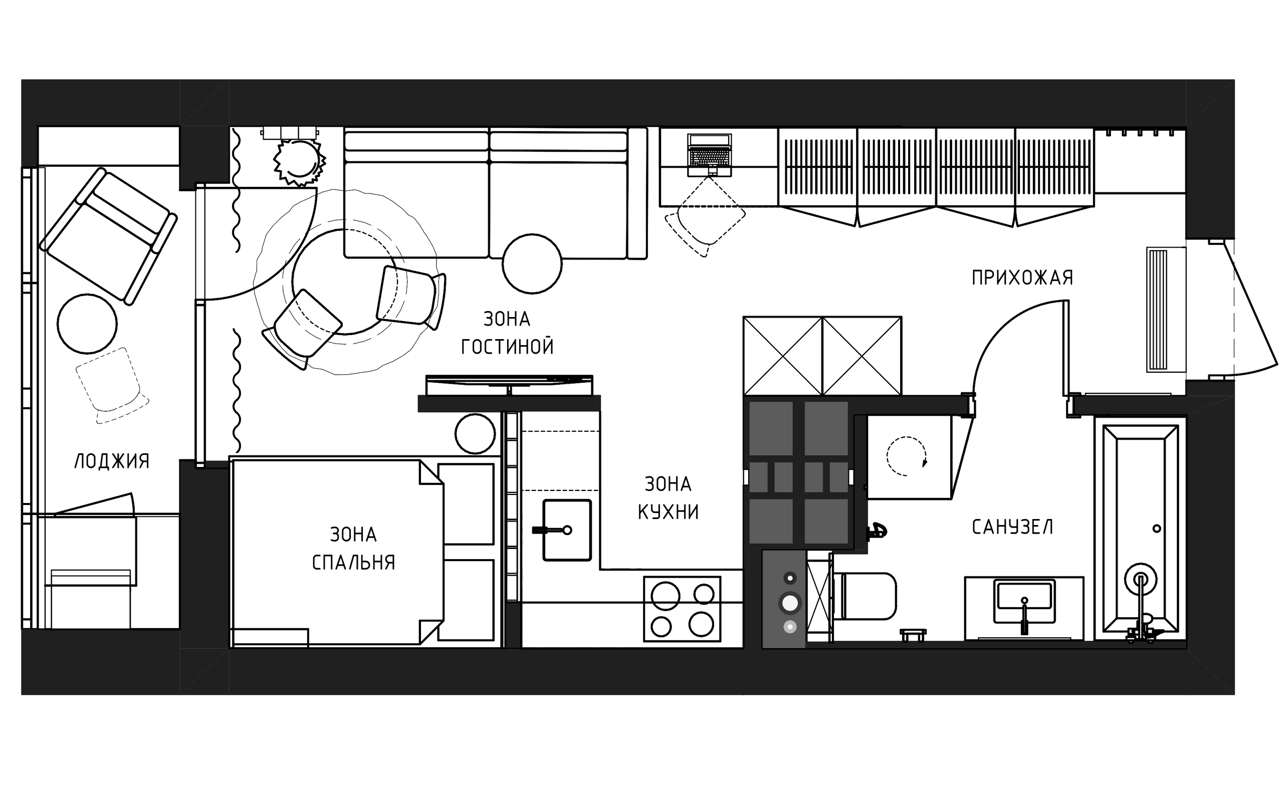
ЖК МИНСК МИР S 34
ДП Частного дома S167
ЖК Минск Мир S40
ЖК ММ БОСТОН S65
ЖК Минск Мир S90
ЖК Мегаполис S90
ЖК Минск Мир, дом Котор S70
ЖК Новая Боровая S90
ЖК Минск Мир, дом Рио-де-Жанейро S90